3 bedrooms in Skyscape Avenue
Complex description
Skyscape Avenue at Sobha Hartland 2 by the renowned Sobha Group, offering premium waterfront apartments in Dubai. This development provides residents with a gateway to an extraordinary lifestyle, featuring stunning waterfront views and redefining luxury living through a perfect blend of sophistication and convenience. With exceptional amenities and thoughtful design, every aspect of Skyscape Avenue is crafted to elevate the living experience. Residents can enjoy close proximity to upscale dining and shopping options, as well as access to exclusive boutique stores. In short, Skyscape Avenue offers all the modern amenities needed for a comfortable lifestyle.
Information about object
Delivery date:
12.2029
S total:
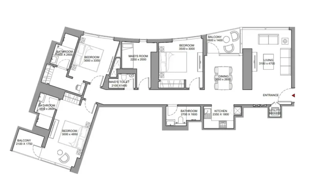
148.2m²
Beds:
3 Bedrooms
Baths:
4
Windows view:
Panoramic
Facade:
Combined
Wall Material:
Monolith
Parking:
Underground parking
Elevator:
Elevator + Stairs
Complex Name:
Location:
Dubai, Sobha Hartland 2
Skyscape Avenue
Developer:
Delivery date:
12.2029
Type:
Apartment
Location:
Bus station :
Aden Street 1, Nad Al Sheba 1
Walk :
7 min.
From 539 167USD
Download presentation
Layouts and prices, photo gallery and infrastructure
Features
Lounge area for residents
Space to work
Sports field
Tennis court
Gym
Outdoor swimming pool
Shared Swimming Pool
Children's Play Area
Children's Pool
Yoga classes
Restaurant
Stores in the house
Public Parks
Near the beach
Near School
Near Hospital
Barbecue Area
Layouts
Select number of bedrooms:
All layouts
1 Bedroom
Mortgage calculator
Estimate how much you could borrow from our partner banks
0 years
Estimated mortgage payment amount :
0 USD
/ per month
Minimal salary:
0 USD
/ per month
Total loan amount
0 USD
Loan duration
0 years
All estimates are approximate and are provided for informational purposes only.
Location
About Sobha Hartland 2
Sobha Hartland II is a testament to the phenomenal success of Sobha Hartland. It’s a new luxury residential waterfront community of 8 million sq. ft. abounding with lush green spaces, community gardens, and many amenities to support a sustainable lifestyle. It brings forth a beautiful blend of an opulent and sustainable waterfront lifestyle and surrounds the city’s best malls, business districts, and hotspots. Immerse yourself in the tranquility of blue lagoons and beachfront amidst the buzz of a bustling city, chase the sunset as you take a jog along the boardwalk, and stroll down the blue lagoons. Life at Sobha Hartland II embodies an exultant sense of connection in a close-knit community and superior quality homes crafted for the discerning eye.
Property catalogue - TOP 100
fill in the contact details and proceed to download the catalog
Similar Layouts
Delivery date: 12-2026
Popular
Dubai, Saih Shuaib (II)
2 bedrooms in Al Haseen Residences 5
447 706USD
Apartment
/
90.62m²
/
2 Bedrooms
Delivery date: 12-2027
Popular
Dubai, Motor City
2 bedrooms in Takaya
687 356USD
Apartment
/
118.65m²
/
2 Bedrooms
Delivery date: 12-2028
Popular
Dubai, Dubai Islands
2 bedrooms in Samana Ocean Bay
1 031 100USD
Apartment
/
129.24m²
/
2 Bedrooms
Delivery date: 11-2025
Popular
Dubai, Arjan
2 bedrooms in 48 Parkside
505 247USD
Apartment
/
158.86m²
/
2 Bedrooms
Delivery date: 06-2029
Popular
Dubai, Business Bay
1 bedroom in Bayz 102
673 650USD
Apartment
/
74.87m²
/
1 Bedroom
Delivery date: 01-2029
Popular
Dubai, Dubai Hills
3 bedrooms in Parkwood Emaar
1 250 340USD
Apartment
/
167.97m²
/
3 Bedrooms





